www.modellbahnfrokler.de

Ein Holzkohlenwagen

Aus der Reihe "Ein Leben ist viel zu kurz..."

Idee: Frank Wieduwilt
Umsetzung: Frank Wieduwilt <frankw@modellbahnfrokler.de>

Holzkohlewagen
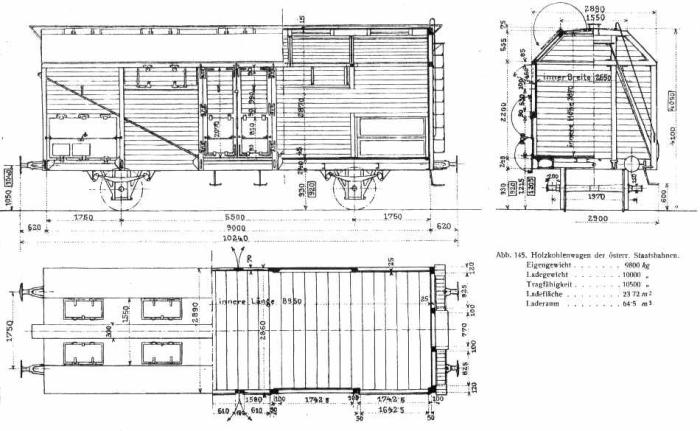
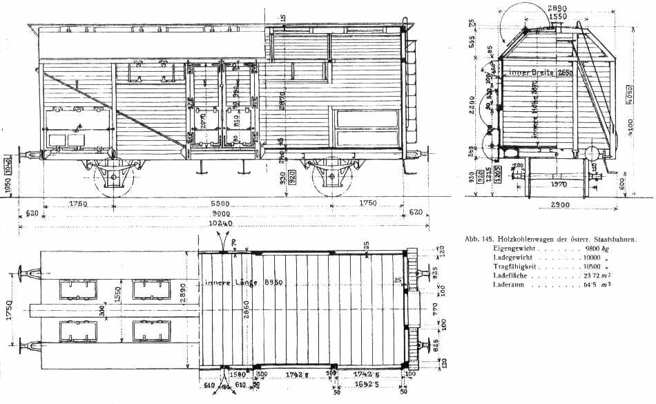
Bild 1: Österreichischer Holzkohlenwagen
Aus: Röll, Enzyclopädie des Eisenbahnwesens, Band 6, Berlin/Wien 1914, S. 236.

Holzkohle wurde in geschlossenen Güterwagen transportiert, die, wegen des geringen Gewichts der Holzkohle, so breit und so hoch wie möglich gebaut wurden.

Der hier vorgestellte Wagen hatte zwei breite Türen in den Seitenwänden und 10 Öffnungen im Dach, über die der Wagen beladen wurde. Zum Entladen wurden die Klappen auf Bodenhöhe geöffnet.
Der Wagen war im Inneren mit Viehanbinderingen versehen, damit er auch zum Transport von Großvieh verwendet werden konnte.

Der Nachbau dieses doch recht interessanten Wagens kann in der üblichen Weise geschehen: Auf ein brauchbares Industriefahrwerk mit selbstgepfuschten Fachwerksachshaltern kommt ein Aufbau aus PS-Bretterplatten und -Profilen. Da das Dach trapezförmig ist, ist der Nachbau nicht so schwierig. Bleiblech dient als Ballast. Die Aufstiegsleitern sollten aus MS-Profilen zusammengelötet werden, damit sie schön filigran werden.

Literatur


[ Index | Mail an Frank ]

Probleme, Tips, Ideen zu dieser Seite? Immer zu mir: webmaster@modellbahnfrokler.de!
Zuletzt bearbeitet am 12. August 2000